寸法線 / 記号
杭伏図、底盤伏図、基礎伏図、見上図、見下図、屋上伏図、断面図、軸組図における寸法線と記号について設定します。
図面作成時に寸法線を作図するにはM037440_snk_sec01
寸法線の表現
「スタイル」で、加筆する寸法線のレイヤ、線幅、線種、線色、フォント、矢印形状などを設定します。
詳しくは、「寸法線・引出線」を参照してください。
自動作図する寸法線
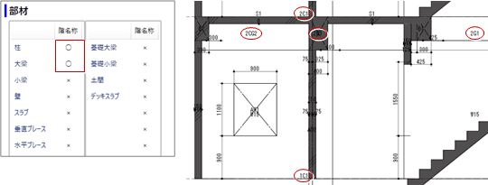
「部材」で、寸法線を加筆する部材の「作図」を「○」にします。クリックするごとに「○」と「×」が切り替わります。
また、部材から寸法線までの間隔や、寸法タイプ、寸法補助線の長さ、突き出し長さを設定します。

メモ
- モデルの
「一般図寸法線」で入力した寸法線も作図する場合は「モデルで入力した一般図寸法線を作図する」をONにします。 - 寸法線の作図位置はプログラム固定です。芯振分け寸法で描画します。
図面 部材 作図位置 平面系図面 柱・柱型・独立基礎 左上 梁・連続基礎 中央 壁 終点から2/5 開口(建具) 外 断面図 梁・独立基礎・連続基礎 右下 壁 中央 スラブ・べた基礎 中央 開口(建具) 見付:左上、断面:断面方向に向かって左 - 作図した寸法線を移動した後に図面再作成を行うと、寸法線がプログラム固定位置に戻ります。
- 寸法タイプについては、「寸法補足」をクリックして確認できます。

図面作成時に記号を作図するにはM037440_snk_sec02
記号の表現
「スタイル」で、加筆する記号のレイヤ、フォントなどを設定します。
見上図、見下図、屋上伏図の場合は、「柱」と「柱以外」の表現を変えることができます。
「柱以外」は、壁、垂直ブレース、水平ブレースに適用されます。
自動作図する記号
「部材」で、加筆する部材の「作図する」をONにします。
描画する記号は、各部材の記号部分をクリックして記号マスタから選択します。
記号内の高さ(レベル)の値は、「高さ基準」で選択した基準(GL・FL・SL・梁天)に沿った値が反映されます。
メモ
- 記号の作図位置はプログラム固定です。
- 作図した記号を移動した後に図面再作成を行っても、記号の位置は保持されます。
- 選択している記号を編集した場合は、「マスタ取り込み」で最新の状態に更新できます。
- 躯体断面図では常に記号が作図されます。記号の前に階の番号を付けたい場合は、その部材の「階名称」をクリックして「○」にします。
部材 階 階名称:× 階名称:○ 大梁 1階 G1 G2 G3 1G1 1G2 1G3 2階 G1 G2 G3 2G1 2G2 2G3 