バック図面変更
参照データの表示を切り替えます。
バック図面を表示する
柱などの部材を配置した後に、設計変更などで断面形状の変更が必要なときがあります。
そのときに、
「バック表示」をクリックすると、周囲の部材がバック図面として表示され、参照しながら断面形状を変更することができます。
再度、
「バック削除」をクリックすると、バック図面を削除できます。
メモ
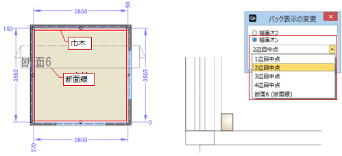
- 巾木、縁石などの場合は、断面がバック表示されます。
次図のように、巾木が1つのデータで4面に配置されていて、断面線が存在する場合、5つの断面が存在します。このように断面の選択肢が1つ以上あると、「バック表示の変更」ダイアログが開きます。「描画オン」をONにして、バック表示する箇所を変更します。
- 笠木、下端見切などの場合は、断面形状の入力時に
「バック表示」をクリックすると、壁や仕上のラインを表示して参照しながら形状を作成できます。