| プログラム名 | 平面図 | Ver. | Ver.3 | ID | Q218700 | 更新日 | 2017/03/09 |
Q:円弧を含むポーチを入力する方法を教えてください。
A:操作モードを「多角円形」にして、円弧形状を含んだポーチを入力することができます。

事前準備
円弧を含むポーチ形状の場合は、補助点等でポーチの外郭線をあらかじめ入力しておきます。
操作方法
- 「外部」メニューから「ポーチ」の「ポーチ」を選びます。

- 「ポーチ」ダイアログで、入力するポーチを設定します。
ここでは、「2段」をONにします。
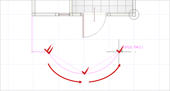
- 「操作モード切替」を「多角円形」に切り替えます。

- 1点目から順にポーチの各頂点をクリックします。

- 円弧の始点となる点で2回クリックして円弧モードに切り替え、通過点、終点をクリックします。

- 残りの各頂点をクリックして、始点と同じ点をもう一度クリックします。

- 下段の始点と終点をクリックします。
