| プログラム名 | 平面図 | Ver. | Ver.3 | ID | Q210330 | 更新日 | 2017/01/16 |
Q:部屋寸法の作成方法を教えてください。
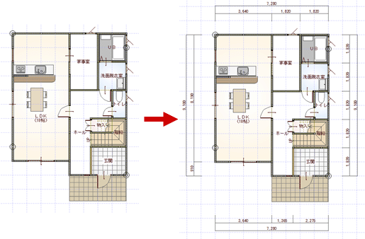
A:「一括作成」の「図面化」、または「部屋」メニューの「部屋寸法」で作成します。

一括作成で作成する方法
部屋やポーチ、犬走り、バルコニーなどの入力データの最大矩形領域をもとに、自動的に部屋寸法を作成します。
- 「一括作成」をクリックします。

- 「一括作成」ダイアログで「図面化」を選び、「全範囲」をONにします。
- 「部屋寸法」をONにして、「オフセット」で建物の最大矩形領域から寸法を作成する位置までの距離を設定し、「OK」をクリックします。


メモ
- 最大矩形領域を計算する入力データは、部屋、ポーチ、犬走り、ウッドデッキ、バルコニー、ベランダ、ポーチ柱、ウッドフェンス、濡縁、手摺、階段、踊り場、下屋根です。
部屋寸法で作成する方法
マウスで部屋寸法の位置を決めたいときは、部屋寸法を手入力します。
- 「部屋」メニューから「部屋寸法」を選びます。

- 建物全体が入るように選択します。

- 部屋寸法線の配置位置をクリックします。
