| プログラム名 | 平面図 | Ver. | Ver.5 | ID | Q210435 | 更新日 | 2018/09/20 |
Q:部屋の中に別の部屋を入力しようとすると「入力できませんでした」と表示されるときの対処方法を教えてください。
A:ドーナツ形状となるように部屋を入力できません。部屋を分割してから別の部屋を入力します。

部屋を分割して別の部屋を入力する
- 「変形」メニューから「分割」を選びます。

- 部屋を選択して、分割する2点をクリックします。

- 「部屋」ダイアログで部屋を選び、分割した部屋線を基準にして部屋を入力します。

- 分割された部屋の間には、「柱壁」メニューの「開口部」で開口を入力します。
※ ここでは、始点と終点に「逃げ」を設定しています。
分割した部屋の帖数を修正する
分割した部屋にはそれぞれに部屋名や面積が表示されるため、1部屋だけ表示するように修正します。
- 「部屋」メニューから「部屋名移動」を選んで、部屋名を移動します。

- 「文字」メニューから「文字属性変更」を選びます。

- 「パック化選択切替」をOFFにして、残す方の面積部分をクリックし、分割した2部屋の面積を合わせた帖数に変更します。

- 「パック化選択切替」をONに戻します。

- 「属性変更」をクリックして、部屋名を削除する方の部屋をクリックします。
- 「部屋」ダイアログの「部屋名」を空欄にして、「居室」のチェックを外し、「OK」をクリックします。

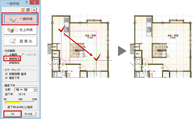
仕上を再作成する
- 階段まわりに必要なシンボルや建具等を入力します。

- 「一括作成」をクリックします。

- 「範囲指定」をONにして、「OK」をクリックします。
- 分割された部屋が含まれるように範囲をクリックします。
