| プログラム名 | 平面図 | Ver. | Ver.3 | ID | Q212425 | 更新日 | 2016/12/19 |
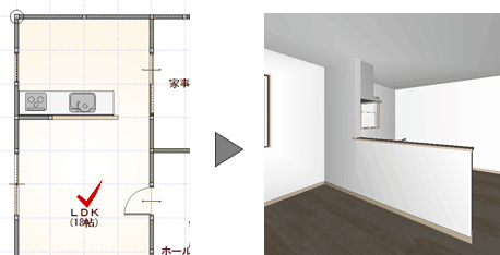
Q:システムキッチンの前に腰壁を入力する方法を教えてください。
A:「柱壁」メニューの「壁」で腰タイプの壁を入力して、仕上を自動配置します。

操作方法
- 「柱壁」メニューから「壁」を選びます。

- 「大壁」ダイアログの「壁タイプ」を「腰」に変更して、「腰高」を設定します。
- 腰壁の始点、終点をクリックします。

- ここでは、「壁タイプ」を「通常」に変更して、下図のように入力します。また、「柱壁」メニューから「柱」を選んで、管柱も2か所追加しています。

- 「一括作成」をクリックします。

- 「一括作成」ダイアログの「仕上作成」を選び、「部屋指定」をONにします。
- 「仕上配置」の「外壁」以外をONにして、「OK」をクリックします。

- 仕上を再作成する部屋をクリックします。
