| プログラム名 | 平面図 | Ver. | Ver.3 | ID | Q216265 | 更新日 | 2017/02/22 |
Q:外壁仕上に目地をまとめて設定する方法を教えてください。
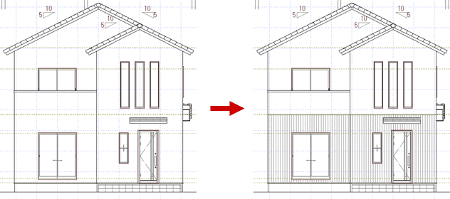
A:「属性別選択」で外壁仕上をまとめて選択し、壁目地を設定して一括変更します。

操作方法
- 「属性別選択」をクリックします。

- 「属性別選択」ダイアログで「外壁仕上」を選択して、「OK」をクリックします。

- 「属性変更」をクリックします。

- 外壁仕上の属性ダイアログで「仕上」をクリックします。
- 「外壁仕上マスタ選択」ダイアログで「壁」の目地をクリックします。

- 「ハッチング属性変更」ダイアログの「パターン」をクリックして、「ハッチングパターン選択」ダイアログから目地のパターンを選択します。
※ 縦目地の素材を使うときは、「縦目地素材用」タブにある目地を選びます。 - 目地の間隔を設定して、「OK」をクリックします。

- 「外壁仕上マスタ選択」ダイアログで「選択」をクリックします。

- 外壁仕上の属性ダイアログで「一括」をクリックします。
- 「外壁仕上一括変更」ダイアログで「壁目地」が選択されていることを確認して、「OK」をクリックします。

- 変更した結果を立面図などで確認します。