| プログラム名 | 平面図 | Ver. | Ver.3 | ID | Q211755 | 更新日 | 2017/03/02 |
Q:部屋名を英語表記にする方法を教えてください。
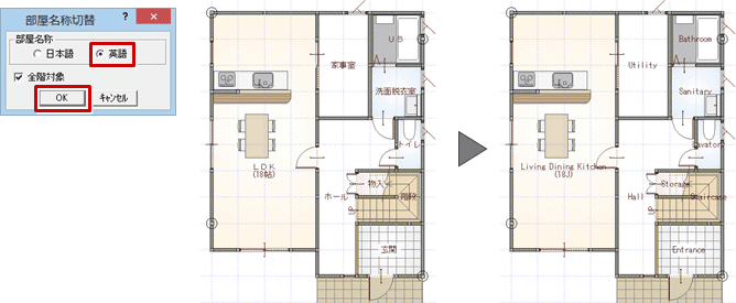
A:「属性」メニューの「部屋名切替(日本語⇔英語)」を使って、部屋名の日本語表記を英語表記にしたり、英語表記を日本語表記にすることができます。

操作方法
- 「属性」メニューから「部屋名切替(日本語⇔英語)」を選びます。

- 「部屋名称切替」ダイアログで部屋名称を表記する言語を選び、「OK」をクリックします。
※「全階対象」がONのときは、全階まとめて部屋名の表記が変更されます。
メモ
- 部屋名の英語表記を初期値としたい場合は、「物件初期設定:マスタ環境-共通マスタフォルダ」の「部屋名称」を「英語」に設定します。なお、「部屋名切替(日本語⇔英語)」を実行すると、この設定も切り替わります。
- 部屋名の日本語表記と英語表記は、部屋マスタの「部屋名」「英語名」が連動します。
表記を変更したい場合は、「建材マスタ起動」メニューから「共通マスタ起動」を選び、「部屋」をクリックして、部屋マスタを個別に編集します。