| プログラム名 | 配置図 | Ver. | Ver.8 | ID | Q263230 | 更新日 | 2021/11/30 |
Q:既存部分と増築部分を合わせた床面積表を作成する方法を教えてください。
A:平面図で増築区画を入力し、「物件初期設定:増改築」で「増築区画考慮」をONにして、床面積求積図で既存部分と増築部分を合わせた床面積表を作成します。

平面図で増築区画を入力する
- 平面図を開きます。
- 「区画」メニューから「増改築区画」の「増築区画」を選びます。

- 増築区画の範囲を指定します。

物件初期設定を設定する
- 「設定」をクリックします。

- 「物件初期設定:増改築」の「増築区画考慮」をONにして、「OK」をクリックします。

既存と増築を合わせた面積表を作成する
- 床面積求積図を開きます。
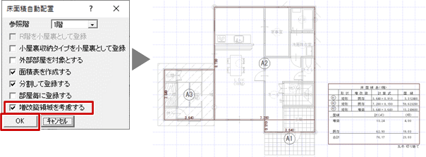
- 「床面積自動配置」をクリックします。

- 「床面積自動配置」ダイアログの「増改築領域を考慮する」がONになっていることを確認して、「OK」をクリックします。
