| プログラム名 | 外皮性能計算 | Ver. | Ver.8 | ID | Q563175 | 更新日 | 2021/11/30 |
Q:外皮見付図の壁の高さを変更する方法を教えてください。
A:外皮性能計算に戻って、熱的境界(壁)の高さを個別に変更するか、「物件初期設定:基準高さ情報」で階高を変更して「自動配置」を実行後、外皮性能図で外皮見付図を再作成します。

熱的境界(壁)の高さを個別に変更する方法
- 外皮性能計算を開いて、壁・建具モードの状態で「属性変更」をクリックします。

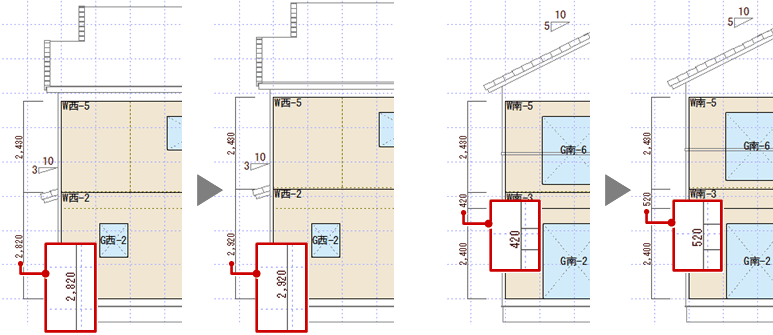
- 壁高を変更する熱的境界(壁)をクリックして、「高さ」を変更します。

- ここでは、高さを変更した分不要になる次図の熱的境界(壁)を削除します。

- 外皮性能図を開いて、「見付図」メニューから「外皮見付図(冷房期)」を選びます。

- 確認画面で「はい」をクリックして、外皮立面と外皮面ごとの見付図を再作成します。

- 立面に割り当てがない面(見えない面)がある場合、次の確認画面が開きます。確認画面で「OK」をクリックします。
※ 割り当てがない面が存在するときの対処方法については、以下のBEST FAQをご参照ください。
「Q:外皮見付図(立面)で割り当てがない面を追加する方法を教えてください。」
- 作成する外皮見付図を選んで、再配置します。

階高の変更によって熱的境界(壁)の高さを変える方法
- 外皮性能計算を開いて、「設定」をクリックします。

- 「物件初期設定:基準高さ情報」の「軒高」(または「階高」)を変更して、「OK」をクリックします。

- 「自動配置」をクリックして、階高を変更した階の熱的境界を再配置します。


- 外皮性能図を開いて、「見付図」メニューから「外皮見付図(冷房期)」を選びます。

- 作成する外皮見付図を選んで、「OK」をクリックします。

- 外皮見付図を再配置します。
