| プログラム名 | 配置図 | Ver. | Ver.3 | ID | Q263185 | 更新日 | 2016/12/27 |
Q:「床面積自動配置」を実行したときに、区画が作成されない場合の対処方法を教えてください。
A:平面図の部屋データが原因となっている場合があります。平面図で「ツール」メニューの「部屋隙間チェック」と「部屋重複チェック」を実行して部屋データ確認した後、床面積求積図の「床面積自動配置」を実行してください。

平面図で部屋の隙間をチェックする
隙間が見つかった場合は、隙間の無いように部屋を入力して、隙間チェックで隙間がないことを確認します。
- 「ツール」メニューから「各種チェック」の「部屋隙間チェック」を選びます。

- 「部屋隙間チェック」ダイアログのチェック対象の値を確認して、「OK」をクリックします。

メモ
-
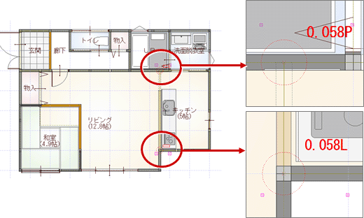
隙間が見つかった場合は、該当箇所にチェック印とその距離が入力されます。隙間の無いように部屋を入力してください。P:頂点同士の距離、L:頂点と辺の距離

平面図で部屋の重複をチェックする
重複があった場合は、重複の無いように処理をして、重複チェックで重複がないことを確認します。
- 「ツール」メニューから「各種チェック」の「部屋重複チェック」を選びます。

- 重複がないことを確認します。

メモ
-
重複が見つかった場合は、対象の部屋が選択状態になります。領域を優先する部屋を指定して重複を解消してください。

床面積求積図を作成する
- 「床面積自動配置」をクリックします。

- 「床面積自動」ダイアログの「OK」をクリックして、建物区画が作成されたことを確認します。
