| プログラム名 | 木造壁量計算 | Ver. | Ver.3 | ID | Q510390 | 更新日 | 2016/09/08 |
Q:木造壁量計算表で図面印刷の図枠を表示する方法を教えてください。
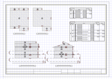
A:「物件初期設定:CAD関連-初期グリッド・用紙」の【図枠設定】にある「図枠選択」で図枠を設定し、木造壁量計算表の面ごとに、「設定」メニューの「用紙枠」で「図枠」をONに切り替えます。
※ 図面印刷の図枠を表示することで、図枠に図・表が収まるように配置できます。

操作方法
- 「設定」をクリックします。

- 「物件初期設定:CAD関連-初期グリッド・用紙」の「図枠選択」をクリックします。
- 用紙枠に使用する図枠を選びます。

- 木造壁量計算表を開き、「設定」メニューから「用紙枠」を選びます。
- 「用紙枠設定」ダイアログの「図枠」をONにします。
- 設定されている図枠を確認して、「OK」をクリックします。

- 図枠を参照して、図・表を配置します。
